|
|
#1 |
|
Przyczajenie
Zarejestrowany: 2015-01
Wiadomości: 6
|
3 mieszkania które wybrać?Proszę o radę!
Cześć Dziewczyny!
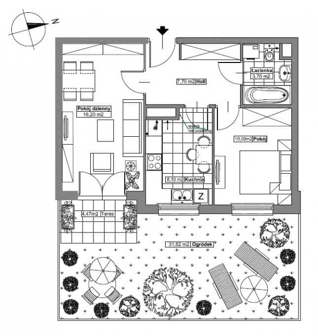
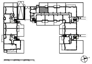
Proszę o doradzenie które z tych 3 mieszkań byście wybrały, wszystkie 3 są praktycznie takie same rozkładowo, różnią się położeniem na osiedlu a co za tym idzie stronami światła: 1) Mieszkanie z ogródkiem na parterze od strony patio. Mieszkanie mi się podoba ma super 30 metrowy ogródek. Mieszkanie wychodzi na patio czyli wewnętrzną część osiedla. Minus to ułożenie mieszkania, jak widać na fotce głównie na wschód. Boje się że będzie ciemne, będzie mało słońca. Plus jest taki że można puścić dziecko, dziecko może wyjść również na patio bawić się z innymi dziećmi i je widać z okien. Patrząc na ten blok od strony patio od po lewej stronie (południowa) ma on 6 pięter, a po prawej (północna) ma 4 piętra. ![]() rozkład na planie: ![]() 2) Mieszkanie na 2 piętrze. Jak widać rozkład nieco się różni: salon jest większy o 2 metry, za to kuchnia mniejsza o 2 metry i skromny balkonik tak jakoś wbudowany. Koło mieszkania na piętrze jest komórka lokatorska. ( w innych mieszkaniach są one w piwnicy). Mieszkanie jest od strony południowej więc słoneczne, ta część bloku ma 6 pięter. ![]() na planie: ![]() 3) Mieszkanie z ogródkiem takie samo jak 1, z tym że od strony zewnętrznej osiedla. Jest to strona zachodnia więc jest słońce. Ogródek jest ogrodzony wyższym metalowym płotem bo tutaj już nie sięga ogrodzenie osiedla, ale zaraz obok na rogu jest stanowisko ochroniarza. Wzdłuż tej części (czyli od płotu ogródka) idzie sciezka rowerowa, za nią chodnik, potem parę miejsc parkingowych, i mała ulica która myslę że rano i po południu będzie używana przez ludzi którzy będą ją uzywac aby dojechać do większych ulic komunikacyjnych.( narazie ulica jest wykańczana) ![]() plan na osiedlu: ![]() Jesteśmy dość młodą parą (28 i 30 lat) i w ciągu roku planujemy 1 dziecko, i myslimy że mieszkanie docelowo byłoby na jakies 5-10 lat, bo przy 2 dzieci dwa pokoje to za mało. Co o nich sądzicie? Edytowane przez guciaczek Czas edycji: 2015-01-15 o 13:26 |
|
|
|
|
#2 |
|
Zakorzeniona Zmorah
Zarejestrowany: 2007-12
Lokalizacja: Gdzieś na pograniczu Śląska i Małopolski
Wiadomości: 11 691
|
Dot.: 3 mieszkania które wybrać?Proszę o radę!
3
__________________
|
|
|
|
|
#3 |
|
Konto usunięte
Zarejestrowany: 2006-10
Wiadomości: 43 642
|
Dot.: 3 mieszkania które wybrać?Proszę o radę!
Wydaje mi się, że zarówno nr 1, jak i nr 3 łatwo sprzedacie - ogródek to jest jednak wabik. Nr 2 niezbyt dla pary z dzieckiem, bardziej jako mieszkanie dla singla lub pary, ale bez dziecka. Zresztą najbardziej podoba mi się układ nr 2, ale ja nie mam dzieci i nie planuję.
|
|
|
|
|
#4 |
|
Wtajemniczenie
Zarejestrowany: 2010-12
Wiadomości: 2 700
|
Dot.: 3 mieszkania które wybrać?Proszę o radę!
1, ze względu na ten ogródek
I tak wyczuwam, że tobie też się najbardziej podoba
|
|
|
|
|
#5 |
|
Zadomowienie
Zarejestrowany: 2014-08
Lokalizacja: zaginiona w puszczy
Wiadomości: 1 508
|
Dot.: 3 mieszkania które wybrać?Proszę o radę!
1 lub 3, drugie bym odrzuciła. Ten ogródek to bardzo fajna sprawa
|
|
|
|
|
#6 |
|
Zakorzenienie
Zarejestrowany: 2014-06
Wiadomości: 4 808
|
Dot.: 3 mieszkania które wybrać?Proszę o radę!
Gdybym miała wybierać dla siebie to mieszkanie numer 1
__________________
beauty begins the moment you decide to be yourself
|
|
|
|
|
#7 |
|
Zakorzenienie
Zarejestrowany: 2005-05
Wiadomości: 3 555
|
Dot.: 3 mieszkania które wybrać?Proszę o radę!
2,
ale ja z tym, które nie chciałyby mieszkac na parterze. Komórka lokatorska wasza obok waszego mieszkania ? jesli tak to rewelacja - mozna zrobic spizarnie i w ogóle wszystko 'pod ręką'
__________________
2004 - Boisz się, że ludzie z internetu odnajdą cię w prawdziwym życiu. 2014 - Boisz się, że ludzie z prawdziwego życia odnajdą cię w internecie. |
|
|
|
|
#8 |
|
Zakorzenienie
Zarejestrowany: 2007-03
Lokalizacja: Hiszpania
Wiadomości: 5 596
|
Dot.: 3 mieszkania które wybrać?Proszę o radę!
Zależy w jakim kraju kupujecie (patio, komórki lokatorskie - brzmi jak opis mieszkania w Hiszpanii). Jak w Polsce to położenie zachodnie lepsze, ale jak gdzieś na południu Europy to przez pół roku będzie piekarnik w domu. Mieszkania położone na wschód mają dużo słońca rano - dobre dla rannych ptaszków. Nocnym markom słońce rano nie potrzebne, tylko w oczy świeci.
Ogólnie nr 2 bym odrzuciła - ogródek przy małym dziecku będzie nie do przecenienia. |
|
|
|
|
#9 |
|
Przyczajenie
Zarejestrowany: 2015-01
Wiadomości: 6
|
Dot.: 3 mieszkania które wybrać?Proszę o radę!
dzięki!
Mieszkanie jest w Polsce. Okazało się że jest jeszcze wolne jedno na parterze od strony zewnętrznej drugie od prawego rogu - w tej części budynek jest 4 piętrowy. Minus jest taki że mieszkanie wychodzi na "zewnątrz" osiedla i tam będzie kiedyś (1 rok -2 lata) droga miejska, nie będą nią raczej szybko jeżdzić ale myslę że jednak będzie używana przez mieszkańców bo jej krańce będą łączyć dwie większe drogi. Plus że jest całkowicie od zachodu. No i oficjalnie nie można metalowego ogrodzenia ogródka niczym przystrajać tzn kłaść żadnego materiału zasłaniąjącego etc, można postawić jedynie tuje czy jakieś wyższe drzewka. No ale to oficjalnie, myślę że można to nagiąć na własne potrzeby z tym materiałem jakby zaszła taka potrzeba...ah i jeśłi chodzi o samo mieszkanie to ma odwrotny rozkład niż te na zdjęciach tzn od wejścia salon nie jest po prawej a sypialnia po lewej tylko odwrotnie tzn salon po lewej a sypialnia po prawej. Ciężka decyzja, parter z ogródkiem chyba nie jest bardzo popularny w Polsce, ludzie jednak chyba wolą piętra:-D Edytowane przez guciaczek Czas edycji: 2015-01-15 o 20:28 |
|
|
|
|
#10 |
|
Raczkowanie
Zarejestrowany: 2013-11
Wiadomości: 124
|
Dot.: 3 mieszkania które wybrać?Proszę o radę!
Tylko i wylacznie numer 2, poniewaz:
- ma najlepsze polozenie wzgledem stron swiata, mieszkanie bedzie cieplejsze i jasniejsze niz pozostale, wiec co za tym idzie poniesiecie mniejsze koszty ogrzewania i oswietlenia, nie mowiac juz o mniejszej szansie na zimowa depresje, - bedzie tez tego swiatla docieralo wiecej niz do podobnie zorientowanego mieszkania na parterze, - wieksza prywatnosc na balkonie niz w ogrodku, nie chcialabym zeby pol bloku mnie moglo obserwowac kiedy siedze sobie na powietrzu, ani sie poopalac ani pogrillowac w spokoju, - mniej halasu z ulicy czy od wrzeszczacych dzieciakow, nieocenione by odpoczac po pracy, - komorka obok tez jak znalazl, wszystko pod reka, a moze nawet daloby sie ja polaczyc z mieszkaniem jako np. spizarnie czy garderobe jesli jest przez sciane. |
|
|
|
|
#11 |
|
zielony stworek
Zarejestrowany: 2006-01
Lokalizacja: z miasta Łodzi kot pochodzi :D
Wiadomości: 16 999
|
Dot.: 3 mieszkania które wybrać?Proszę o radę!
A mnie w 2 nie podoba się położenie kuchni i mam wrażenie,że będzie tam ciemno.
3 |
|
|
|
|
#12 | |
|
Zakorzenienie
Zarejestrowany: 2005-05
Wiadomości: 3 555
|
Dot.: 3 mieszkania które wybrać?Proszę o radę!
Cytat:
tam jest zaznaczone okno
__________________
2004 - Boisz się, że ludzie z internetu odnajdą cię w prawdziwym życiu. 2014 - Boisz się, że ludzie z prawdziwego życia odnajdą cię w internecie. |
|
|
|
|
|
#13 |
|
Zadomowienie
Zarejestrowany: 2014-08
Lokalizacja: zaginiona w puszczy
Wiadomości: 1 508
|
Dot.: 3 mieszkania które wybrać?Proszę o radę!
Przeanalizowałam jeszcze raz i dalej jestem za 1 lub 3. W ogródek wychodzi na podwórko, wszyscy będą widzieli co robisz. W trzecim tego problemu nie ma bo wychodzi ono na inną stronę i masz mniej "podglądaczy" z pieter wyżej.
Drugie odrzuciłabym od razu, bardzo mały balkonik, bałabym się, że kuchnia będzie ciemna. Nie podoba mi się w tym mieszkaniu to, że kuchnia jest zamknięta. Lubisz takie rozwiązania? Ja bym ją otworzyła. W tych mieszkaniach jest duży holl ( po co Ci taki ) a jak dla mnie jest to marnowanie przestrzeni. Spokojnie można by pousuwać ściany, otworzyć kuchnię i salon kosztem holu, który i tak jest strasznie nieustawny, są w nim same drzwi. Kolejny argument dlaczego mieszkanie nr 2 odpada - tam kuchnia ma niecałe 6m2 ! jak lubisz gotować, to daruj sobie to mieszkanie, chyba, że wyburzysz ścianę lub część ściany między kuchnią a salonem. W mieszkaniach nr 1 i 3 jest trochę problem jak byś chciała otworzy kuchnię, przez komin wentylacyjny. |
|
|
|
|
#14 |
|
Przyczajenie
Zarejestrowany: 2015-01
Wiadomości: 6
|
Dot.: 3 mieszkania które wybrać?Proszę o radę!
A gdybyś miała możliwość wybrać jeszcze mieszkanie o takim samym rozkładzie jak 1/3, również na zachód czyli na ulicę ale w części 6 piętrowej budynku na piętrach od 1/2/3/5 ? (z własnym 4 metrowym balkonem)
Ewentualnie są jeszcze wolne takie same mieszkania na piętrach 1 oraz 3 w części 4 piętrowej budynku, ale w takim przypadku balkon współdzielony jest z sąsiadem – w sensie wychodzisz na balkon i masz taką mleczna/biała szybke i obok część sąsiada. Rozważałabyś w ogóle parter z ogródkiem, czy wyższe piętra? Dla przypomnienia: Parter z ogródkiem ulokowany jest na zewnątrz, na zachód, w 4 piętrowej czesci. Jest przedostatni w linii od skrajnego rogu budynku. Ciekawe czy dużo słońca będzie tam dochodziło. Jeśli chodzi o kuchnię to faktycznie aby ją otworzyć na salon trzeba by chyba przenieść cały blat na przeciwną stronę kuchni, jeszcze nie wiem czy byśmy otwierali całkowicie. Może jakoś częsciowo, zamknięta kuchnia również mi się podoba, choć faktycznie jakby ją otworzyć to by się zwiększyło optycznie salon. |
|
|
|
|
#15 |
|
Przyjaciel wizaz.pl
Zarejestrowany: 2004-06
Lokalizacja: Warszawa
Wiadomości: 33 873
|
Dot.: 3 mieszkania które wybrać?Proszę o radę!
Brałabym 1 lub 3 bo jestem zwolenniczką parteru i ogródków, sami takie mieszkanie wybraliśmy i mamy spory ogródek (ok. 90 m
). Co do tego które, zastanowiłabym się przede wszystkim które by było bezpieczniejsze. Numer 1 wydaje się być lepsze pod tym kątem, bo sąsiedzi mają widok na ten ogródek. Z jednej strony to mniejszy komfort, bo ludzie patrzą, ale jest i druga strona medalu - jak ludzie patrzą, to włamywacze są mniej chętni, żeby się tam pchać
|
|
|
|
|
#16 |
|
Przyczajenie
Zarejestrowany: 2015-01
Wiadomości: 6
|
Dot.: 3 mieszkania które wybrać?Proszę o radę!
wow ale masz duży ogródek, ten co ja mogę kupić ma 30 m2 i mi się wydaje całkiem sporawy (4 m na 8,5 m) a 90 m2 to już naprawdę fajne. Budę z pieskiem można postawić :-D Swoją drogą myślelismy o tym nawet :p
Jeśli kupię z ogródkiem to będzie raczej od strony zachodniej na ulice bo tam słońca powinno być dużo. Od strony patio to wschód więc może być problem ze słońcem, dodatkowo wszyscy cie widzą. Na zewnątrz w sumie jest nieco bardziej intymnie, no ale od ulicy i bardziej podatne na złodzieji. A często korzystacie z waszego ogródka? Masz może dzieci jesli mogę zapytać? Wasz jest od strony patio? Mnie tata mowi że nie będziemy go używać, potem może być ciężko je sprzadać etc i że to wymysł. Mieszkanie jest również w Warszawie. |
|
|
|
|
#17 |
|
Przyjaciel wizaz.pl
Zarejestrowany: 2004-06
Lokalizacja: Warszawa
Wiadomości: 33 873
|
Dot.: 3 mieszkania które wybrać?Proszę o radę!
Póki co nie korzystamy, bo mieszkanie się właśnie wykańcza i będziemy się przeprowadzać w ciągu kolejnych 2 tygodni
Dzieci nie mamy, mamy za to dwa psy i one na pewno będą korzystać z ogródka ![]() Nie wiem co to znaczy "od strony patio", chodzi o coś wyłożonego płytką? Mamy ogródek w kształcie L, okalający mieszkanie, mamy też nieduży "taras", taki z 5 metrów pewnie, zadaszony. I z niego się wychodzi na trawę. Ogródek mamy spory, ale muszę Ci powiedzieć, że moja mama to ma dopiero luksus U niej na 1 piętrze zrobiono tarasy z trawą, więc moi rodzice mają 70 metrów tarasu w płytkach i chyba jakieś 150 metrów trawnika . Porobili tam grządki, nawieźli nieco więcej ziemi, posadzili krzewy, małe drzewka - wyszło całkiem jak ogród. Okoliczni sąsiedzi tam też mają te ogródko-tarasy i najintensywniej korzystają z nich dzieci - przechodzą do siebie nawzajem przez te tarasy, bawią się tam jak jest ciepło. Dorośli korzystają zwykle jak goście przyjdą, wtedy siedzą na świeżym powietrzu. |
|
|
|
|
#18 |
|
Przyczajenie
Zarejestrowany: 2015-01
Wiadomości: 6
|
Dot.: 3 mieszkania które wybrać?Proszę o radę!
No extra macie:-D W tych osiedlach co my oglądaliśmy, to takich ogródków raczej nie było a jak były to były przypisane raczej do większych mieszkań, takich min. 70 m2. chociaż i tak nie widzieliśmy wielu takich wielkich ogródków, większość ma tak własnie 30 m2 do 50 m2, choć sa i mniejsze 15-20 m2.
Patio to wewnętrzna część osiedla - u mnie jest ono w kształcie podkowy. W kazdym razie tam już odrzucam mieszkanie bo będzie zbyt ciemne. Dziś jest ładna pogoda i tata był sprawdzić jak to wygląda i mowi że strona zachodnia ładnie oświetlona, a na dziedzińcu/patio o 13:30 już słońca nie było. Ale jemu się nie podoba ta opcja ogródka w ogóle i mówi że widac wszystko w mieszkaniu etc. Edytowane przez guciaczek Czas edycji: 2015-01-16 o 14:29 |
|
|
|
|
#19 |
|
Zakorzenienie
Zarejestrowany: 2007-03
Lokalizacja: Hiszpania
Wiadomości: 5 596
|
Dot.: 3 mieszkania które wybrać?Proszę o radę!
Z ogródka się korzysta w Polsce mniej więcej od maja do września. Jak jest zagrodzony i bezpiecznie urządzony to możesz puścić tam dziecko samopas i mieć chwilę na inne czynności. Może to i nie jest jakieś super intymne, bo jednak inni mieszkańcy mogą zaglądać, ale przy dziecku będzie jak znalazł. A i Ty możesz sobie kawę wypić, opalać nago się przecież nie musisz. Dla mnie ten ogródek to jest przedłużenie / powiększenie domu w okresach letnich. Można go zabetonować, można posiać trawę, ale samo jego posiadanie jest wg mnie bezwzględnym plusem.
|
|
|
|
|
#20 |
|
Zadomowienie
Zarejestrowany: 2014-08
Lokalizacja: zaginiona w puszczy
Wiadomości: 1 508
|
Dot.: 3 mieszkania które wybrać?Proszę o radę!
Budynek jest w kształcie litery u więc od strony patio każdy będzie Cię widział, ja bym czuła się obserwowana i dla mnie byłby to problem, poza tym budynek będzie wam dodatkowo zacieniał, wieczorami nie będziecie mieli słońca a na ogródku najczęściej siedzi się wieczorem, popołudniem, rano tylko w weekend jak ktoś pracuje. Trzecie mieszkanie jest od innej strony więc ma mniej obserwatorów. Złodziejami nie wiem ale specjalnie bym się nie przejmowała, teraz dużo mniej się słyszy o kradzieżach. Zresztą jak mają akurat Ciebie okraść to i tak to zrobią.
Ja osobiście nie chciałabym mieszkania na piętrze jak miałabym do wyboru parter ale z ogródkiem. No chyba, że na piętrze byłby wielki taras, wtedy bym się nie zastanawiała tylko brała piętro. Jakie macie ogrzewanie? To też jest ważne bo trzeba pamiętać, że parter zwykle jest chłodniejszy. |
|
|
|
|
#21 | |
|
Przyjaciel wizaz.pl
Zarejestrowany: 2004-06
Lokalizacja: Warszawa
Wiadomości: 33 873
|
Dot.: 3 mieszkania które wybrać?Proszę o radę!
Cytat:
|
|
|
|
|
|
#22 | |
|
Zakorzenienie
Zarejestrowany: 2005-05
Wiadomości: 3 555
|
Dot.: 3 mieszkania które wybrać?Proszę o radę!
Cytat:
A cenowo wychodzi Wam taniej za metr ? a jak z podatkiem za 'ogródek' (podatek od nieruchomosci, ziemi?)
__________________
2004 - Boisz się, że ludzie z internetu odnajdą cię w prawdziwym życiu. 2014 - Boisz się, że ludzie z prawdziwego życia odnajdą cię w internecie. |
|
|
|
|
|
#23 |
|
Przyjaciel wizaz.pl
Zarejestrowany: 2004-06
Lokalizacja: Warszawa
Wiadomości: 33 873
|
Dot.: 3 mieszkania które wybrać?Proszę o radę!
Cenowo było nieco korzystniej niż na piętrze. Ogródek był gratis. Ogródki stanowią część wspólną osiedla ale z wyłącznym prawem użytkowania dla nas, więc zdaje się, że podatek nas nie dotyczy - bo de facto grunt nie jest nasz, tylko go sobie używamy.
|
|
|
Najlepsze Promocje i WyprzedaĹźe
|
|
#24 |
|
Przyczajenie
Zarejestrowany: 2015-01
Wiadomości: 6
|
Dot.: 3 mieszkania które wybrać?Proszę o radę!
W naszym wypadku te z ogrodkami sa tansze o 6-20 tys. w stosunku do pieter( w zaleznosci od pietra etc).Z tego co wiem rowniez nic nie musimy placic za ogrodek.
Edytowane przez guciaczek Czas edycji: 2015-01-16 o 16:57 |
|
|
|
|
#25 |
|
Przyczajenie
Zarejestrowany: 2015-01
Wiadomości: 1
|
Dot.: 3 mieszkania które wybrać?Proszę o radę!
A ja zdecydowanie optuje za nr 2. Ogrodki w budynkach wielkpietrowych to tylko i wylacznie smietnik z pieter powyzej. 30m2 glowy nie urywa. Jest za to mieszkaniem mniej intymnym, chlodniejszym, ciemniejszym, mniej bezpiecznym i glosniejszym. Jedyny plus jest taki, ze nie uzywasz windy. Pisze to jako mieszkaniec parteru. Ogrodki moze i maja sens ale ponpierwsze wieksze, a po drugie w budynkach dwu kondygacyjnych. Dziecko bedzie Ci wrzeszczalo na ogrodku, mily sasiad bedzie Ci w nagrode sypal smieci, kiepy, wode itd. Nie mowiac o wiecznie sypiacych sie platkach z kwiatow balkonowych. Komorka obok mieszkania: bezcenna: rowerek, wozek, itd
|
|
|
|
|
#26 |
|
Zakorzenienie
Zarejestrowany: 2009-06
Lokalizacja: Wrocław
Wiadomości: 34 671
|
Dot.: 3 mieszkania które wybrać?Proszę o radę!
3
__________________
|
|
|
|
|
#27 | |
|
Zakorzenienie
Zarejestrowany: 2003-02
Wiadomości: 19 771
|
Dot.: 3 mieszkania które wybrać?Proszę o radę!
Cytat:
ale ja też z tych, co się parteru boją. Ogródek mnie do końca nie przekonuje - siostra ma kawałek ogródka i jest to, o czym pisze krystof - "mili" sąsiedzi z góry wyrzucają butelki, śmieci itp.
__________________
wymiana https://wizaz.pl/forum/showthread.php?t=1270304 rękodzieło https://wizaz.pl/forum/showthread.php?t=882341 Moda - wspólne zakupy https://wizaz.pl/forum/forumdisplay.php?f=110 Przeczytaj to, zanim coś kupisz przez wizaż https://wizaz.pl/forum/showpost.php?...56&postcount=1 |
|
|
|
|
|
#28 |
|
Konto usunięte
Zarejestrowany: 2013-11
Wiadomości: 11 723
|
Dot.: 3 mieszkania które wybrać?Proszę o radę!
Ja też kiedyś się napaliłam na mieszkanie na parterze z ogródkiem. Jednak po oględzinach powiedziałam stanowcze `nie`. Powody jakie mną kierowały to:
- Ogródek, który na rzucie wyglądał super duży, w rzeczywistości okazał się mikro niewypałem; - mieszkanie bardzo ciemne; - miła pani sprzedawczyni zdążyła napomnieć, że przewidziany jest obok ogródka parking, czyli praktycznie sąsiedzi parkowaliby mi prosto do ogródka; - blok miał kilka pięter więc śmieci z balkonów powyżej pewnie byłyby na porządku dziennym; - trochę dziwnie bym się czuła siedząc na swoim mikro ogródku, gdy metr obok siedziałby sąsiad. |
|
|
|
|
#29 |
|
Zakorzenienie
Zarejestrowany: 2014-06
Wiadomości: 4 808
|
Dot.: 3 mieszkania które wybrać?Proszę o radę!
Co wy z tymi sąsiadami zrzucającymi śmieci z wyższych pięter? Poważnie takie rzeczy się zdarzają?
__________________
beauty begins the moment you decide to be yourself
|
|
|
|
|
#30 |
|
Zakorzenienie
Zarejestrowany: 2009-06
Lokalizacja: Wrocław
Wiadomości: 34 671
|
Dot.: 3 mieszkania które wybrać?Proszę o radę!
moze nawet niechcący... mojej koleżance kiedys tak cały worek z plastkiem sie rozsypał u sąsiada... a pana nie było i czatowała tydzien az z wakacji wróci żeby już na klatce go przepraszać za to co sie wydarzyło na jego ogródku
__________________
|
|
|
![]() |
Nowe wątki na forum Dom, mieszkanie, nieruchomości
|
|
|
| Ten wątek obecnie przeglądają: 1 (0 użytkowników i 1 gości) | |
|
|
Strefa czasowa to GMT +1. Teraz jest 06:53.











I tak wyczuwam, że tobie też się najbardziej podoba









. Porobili tam grządki, nawieźli nieco więcej ziemi, posadzili krzewy, małe drzewka - wyszło całkiem jak ogród.

